306 2469
CORNWALL AVE
Unicorn Kitsilano penthouse in an iconic location with sweeping views of Burrard Inlet, the North Shore mountains, and Vancouver’s skyline.
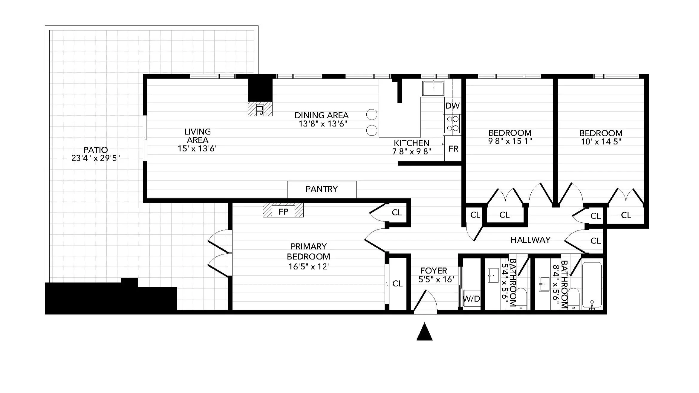
This 1,406 sqft home offers a bright, open layout that flows onto a 474 sqft wraparound patio. 3 spacious bedrooms, 2 gas fireplaces, formal foyer, and generous interior storage, with stunning views from nearly every room.
Recent updates include: fully renovated kitchen with integrated Café appliances, custom pantry & wine fridge, flooring throughout including new patio tiling, and glass railing to enhance views. Huge storage locker + 1 parking. Steps to Kits Beach, dining, cafés, shops, and transit.
This is your beachside vacation home within the city, with every amenity at your fingertips.
-
$1,749,900
-
3
-
2
-
1406 Square Feet
-
406 Square Feet
-
1957
-
Kitsilano
-
$4739.46
-
$774.90

